
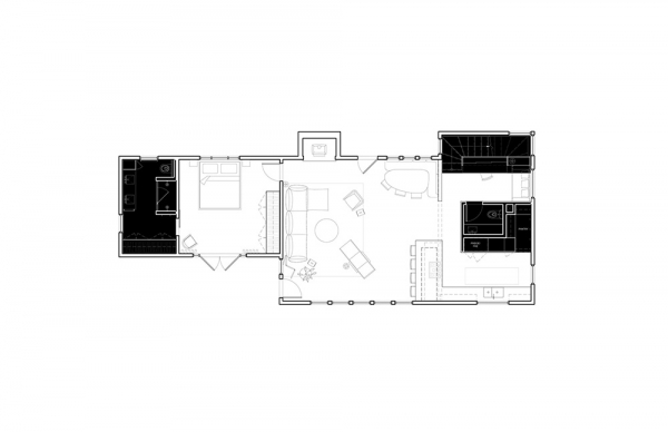
Перед началом проекта реконструкции этого старого ранчо в Калифорнии дизайнеры студии MUKA не подозревали, что всё сложиться настолько удачгл. Дом был построен в середине прошлого века и долгое время находился в полузаброшенном состоянии. Студия смогла не просто обновить устаревшие интерьеры и неудобную планировку, но полностью переосмыслили жилое пространство для молодой семьи хозяев. Теперь это очень эффектный и вдохновляющий интерьер со смелыми цветовыми акцентами и стильной мебелью, который разошелся на ура в Пинтересте. Приятного вдохновения!























Источник — http://www.pufikhomes.com/ru/2025/10/zabroshennoe-rancho-v-kalifornii-poluchilo-novuyu-zhizn/
