
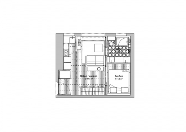
Парижский интерьер должен быть элегантным и с творческой ноткой, и не важно, это просторные апартаменты или небольшая квартира. Сегодняшний наш интерьер относиться ко второй группе — по функции это двухкомнатная квартира, но её площадь всего 30 кв. м. Как мы знаем, французские дизайнеры могут пожертвовать чем угодно, только не элегантностью, поэтому стены жилья обильно украшенные молдингами, картинами в рамках, а в декоре преобладают утончённые детали с классическими нотками. Отдельно стоит отметить крошечную спальню с раздвижными дверьми, спрятанными под шкаф. Enjoy!














Источник — http://www.pufikhomes.com/ru/2025/10/moldingi-i-sprjatannaja-spalnja-ocharovatelnaja-malenkaja-kvartira-v-parizhe-30-kv-m/
